Il sistema Integrale THERMICWOOD mm 81 permette la realizzazione di serramenti in alluminio-legno con doppia interruzione termica (Epdm+Poliammide) e complanari sia all’interno che all’esterno (linearità estetica e facilità di pulizia) nelle due versioni piana ed arrotondata.
VERSIONE PIANA
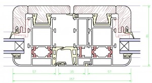
Profilo portante telaio fisso e anta mobile: mm. 65×37 con barrette in poliammide da mm.24
Profilo accoppiato con sagomato in legno per telaio fisso e anta mobile: mm. 81×37
Assieme perimetrale: mm. 81×118
Assieme centrale: mm. 81×157 (con profilo di riporto) oppure mm. 81×138 (con TZ)
Aletta di battuta: mm. 19
Altezza sede vetro: mm. 20
Spessore per vetro o pannello: mm. 28-30 oppure 43-45
VERSIONE ARROTONDATA
Profilo portante telaio fisso: mm. 65×37 con barrette in poliammide da mm.24
Profilo portante anta mobile: mm. 65×37 con barrette in poliammide da mm.14
Profilo accoppiato con sagomato in legno per telaio fisso e mobile: mm. 81×37
Assieme perimetrale: mm. 81×118
Assieme centrale: mm. 81×157 (con profilo di riporto) oppure mm. 81×138 (con TZ)
Aletta di battuta: mm. 19
Altezza sede vetro: mm. 20
Spessore per vetro o pannello: versione piana mm. 18-20 oppure 33-35







